Owner

販売中の建売物件

◆磐田市千手堂モデル2026年4月完成予定◆

92.73㎡(28.05坪)

物件の特徴

生活動線を考えた無駄のない間取り

家具配置がしやすいLDK設計

プライベートと共有空間を程よく分けたレイアウト

採光・通風を考慮した窓配置

※実際の暮らしをイメージしやすいモデルハウス仕様です。

学区

・磐田市立磐田南小学校まで240m・・・徒歩3分
・磐田市立南部中学校まで650m・・・徒歩9分

周辺環境

・コスモス上岡田店まで1000m・・・徒歩14分
・ピアゴ上岡田店まで1300m・・・徒歩17分
・セブンイレブンまで550m・・・徒歩8分

 

\磐田市千手堂モデルハウス /
2026年4月完成予定🏠

■ 外観パース 🏡

来年4月完成予定の新モデルハウスを、
🌟限定1棟・オーナー様募集🌟

暮らしやすさとデザイン性を両立した住まい✨
モデルハウス特別仕様でご提供します。
完成前からお問い合わせが増える人気物件のため、
ご検討はお早めにおすすめします👀

■ 1F間取り 🧭

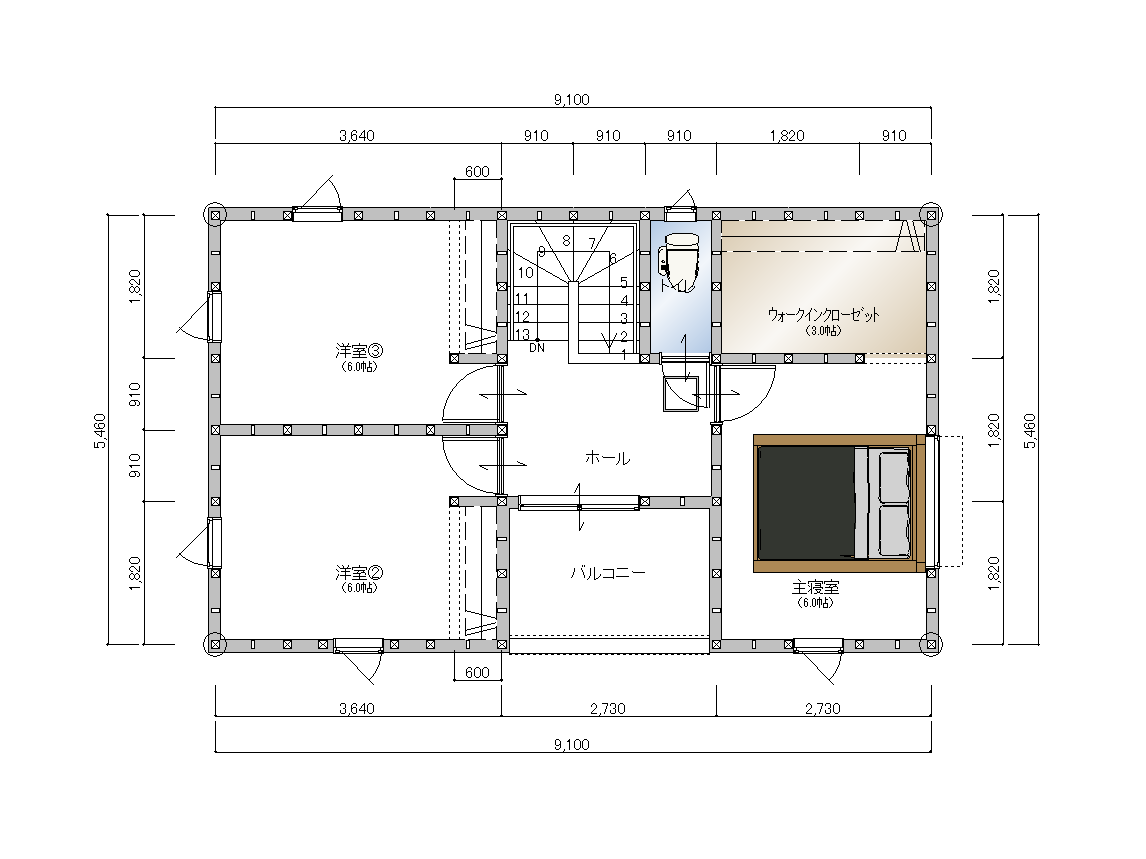
■ 2F間取り 🧭

✔ 生活動線を考えた無駄のない間取り
✔ 家具配置がしやすいLDK設計
✔ プライベートと共有空間を分けた間取り
✔ 採光・通風を考えた窓配置

■ 内観パース 🌿

■ 建物の特徴 🌿

🌳 木目天井が映えるLDK
🍳 キッチンから見渡せる一体型空間
💡 ペンダント照明が映えるダイニング
🛏 落ち着きのある主寝室
🏡 シンプルで飽きのこない外観デザイン

■ 物件概要 📋

💰 販売価格:2,980万円(税込)
📐 土地面積:134.53㎡(40.69坪)
🏠 建物面積:92.73㎡(28.05坪)
📅 完成予定:2026年4月

■ 月々支払例 💳

💴 月々 43,280円
(ボーナス月加算:100,000円/年2回)

・頭金0円
・借入額:2,980万円
・年利0.775%
・変動金利/50年返済

■ 周辺環境 🚶‍♀️

🏫 磐田市立磐田南小学校 徒歩3分
🏫 磐田市立南部中学校 徒歩9分
🛒 コスモス上岡田店 徒歩14分
🛒 ピアゴ上岡田店 徒歩17分
🏪 セブンイレブン 徒歩8分

■ お問い合わせ📞

📅 来場予約はこちら

🌸 限定1棟のためお早めに 🌸

■ アクセスマップ 🗺️

ご相談はすべて無料です!

お気軽にお問い合わせください

来場予約
お電話