

立地にもこだわった住まいを2タイプご提案します。
子育て世代に
小学校・保育園まで徒歩圏内。子どもの成長に寄り添う立地です。
平屋に憧れる方に
タイプの異なる2棟を同時に見比べられる貴重な機会です。
コストを抑えたい方に
家具・カーテン・外構・照明・仲介手数料がすべて0円。余計な費用なし。
省エネ・安心な家に
高性能断熱・耐震・充実の保証内容でずっと安心して暮らせます。
大きな窓から光が差し込む明るいリビング。
趣味の部屋や収納として活用できるロフト付き。
2LDK+ロフト
大きな窓から光が差し込む、明るく開放的なリビング。勾配天井が空間をさらに広く見せます。ロフトは趣味スペースや収納として自由に活用できます。
土地47.52坪・建物19.54坪・外構・駐車3台
3,380万円(税込)
月々お支払い例 65,000円〜 / 仲介手数料0円
明るく開放的なリビング
勾配天井×大開口で、光と風が心地よく流れる空間。
使い方自由なロフト
趣味の部屋・子どもの遊び場・収納スペースとして。
ウッドデッキでお庭遊び
リビングと繋がるデッキで、家族の団らんが広がります。
間取り図
物件概要
| 所在地 | 愛知県西尾市国森町2番最寄駅付近 |
|---|---|
| 価格 | 3,380万円(税込・仲介手数料0円) |
| 土地面積 | 47.52坪 |
| 建物面積 | 19.54坪 |
| 間取り | 2LDK+ロフト |
| 構造 | 木造1階建て(平屋) |
| 設備 | 公営水道、本下水、都市LPG |
| 駐車 | 3台可能 |
| 竣工 | 2025年10月 |
| 周辺施設 | 矢田小学校350m・矢田保育園400m・マックスバリュ西尾新在家店900m・四尾信用金庫矢田支店130m |
現地マップ
落ち着いた色使いのアクセントクロスでくつろげるLDK。
フラットな生活動線で家事効率アップ。
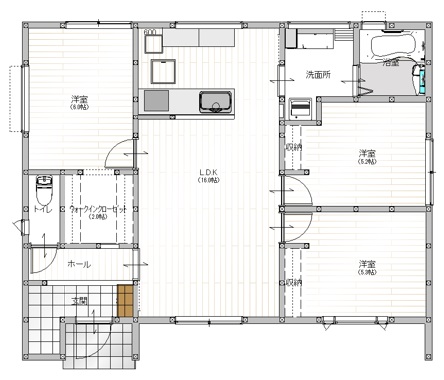
3LDK
落ち着いた色使いのアクセントクロスが空間を引き締めるLDK。フラットな動線設計で、毎日の家事がラクになります。3LDKのゆとりある間取りが家族の暮らしを支えます。
土地49.71坪・建物22.29坪・外構・駐車3台
3,380万円(税込)
月々お支払い例 65,000円〜 / 仲介手数料0円
くつろぎのLDK
アクセントクロスが映える、落ち着いた色づかいのリビング。
食洗機付きシステムキッチン
対面キッチンで家族の様子を見ながら料理できます。
たっぷり収納&洗面
ハンガーパイプ付き枕棚の収納で、スッキリ整理。
間取り図
物件概要
| 所在地 | 愛知県碧南市金山町5丁目89番2 |
|---|---|
| 価格 | 3,380万円(税込・仲介手数料0円) |
| 土地面積 | 49.71坪 |
| 建物面積 | 22.29坪 |
| 間取り | 3LDK |
| 構造 | 木造1階建て(平屋) |
| 設備 | 公営水道、本下水、都市LPG |
| 駐車 | 3台可能 |
| 竣工 | 2025年10月 |
| 周辺施設 | 新川小学校1400m・新川保育園600m・ゲンキー金山店300m・ドミー新川店600m |
現地マップ
ハイグレードかつ安心・安全。省エネな暮らしを実現する標準仕様です。
高性能樹脂サッシ
ハンガーパイプ付き枕棚の収納
食洗器付きシステムキッチン
浄水器一体型蛇口
おしゃれなアクセントクロス
1坪サイズユニットバス
Low-E ペアガラス
LED照明器具 標準
LDK 大型エアコン
汚れの付きにくい外壁
ホルムアルデヒド軽減内装
Wi-Fi 収納ニッチ
地震に強いべた基礎
地盤調査保証・シロアリ保障・地震保証
24時間365日・定期アフターメンテナンス
設備保証延長10年