Event

イベント情報

【半田店】2月7日-9日 |【碧南市金山町】新 平屋モデルオープン👀✨

開催日

2/7(土)-2/9(月)

開催時間

9:30~17:30

開催場所

愛知県碧南市金山町5丁目89番2 付近

〖碧南市金山町〗 モデルハウスオープン🎊

平屋のモデルハウスグランドオープン!🏡 実際のお家が見られるこの機会に、ぜひご覧ください。

日程:【予約制】2月7日~9日 時間:9:30~17:30 場所:愛知県碧南市金山町

碧南市金山町モデルハウス外観

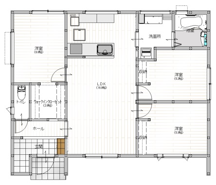
間取り図

実際の建物で広さや動線、収納量を体感いただけるチャンスです。
モデルハウス間取り図

アクセスマップ

ご来場予約

    お申込み内容  (必須)

    お問い合わせ店舗  (必須)

    ご希望日(第1希望)


    カレンダーアイコンをクリックでカレンダー表示

    ご希望時間(第1希望)

    ご希望日(第2希望)


    カレンダーアイコンをクリックでカレンダー表示

    ご希望時間(第2希望)

    お名前 (必須)

    住所 (必須)

    電話番号 (必須)

    メールアドレス (必須)

    平屋生活を知ったきっかけ (必須)

    ネット検索AIで調べてチラシインスタグラムLINEYoutubeSUUMOドコタテイエタテアットホームCMを見て看板モデルハウスを見て知人からの紹介その他

    お問合わせ内容

     確認ページはございません。内容をご確認の上チェックを入れてください

    ご相談はすべて無料です!

    お気軽にお問い合わせください

    来場予約
    お電話